Grondig gerenoveerde open bebouwing met zwemvijver, poolhouse en luxekeuken in Zelem
Op zoek naar een woning die méér biedt dan louter wooncomfort? Deze prachtig gerenoveerde open bebouwing (EPC A) in Zelem combineert een zee aan ruimte (279 m²), doordachte luxe en een ongeëvenaarde buitenbeleving.
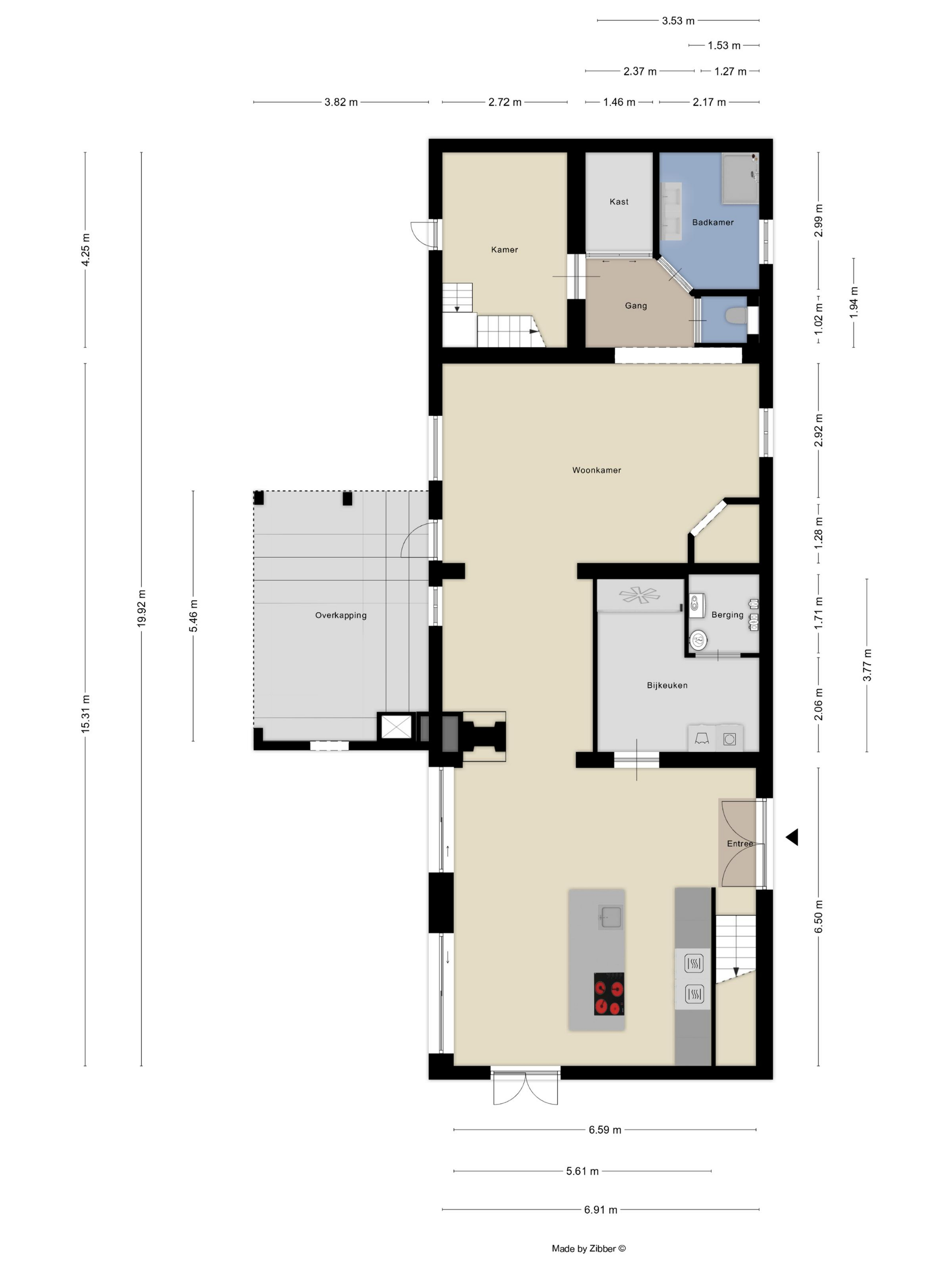
Binnen: ruimte, licht en luxe
Stap binnen in een stijlvolle, open leefruimte met natuurlijke lichtinval en directe verbinding naar de tuin. De indrukwekkende keuken is een echte eyecatcher, uitgerust met o.a. een stoomoven, kookplaat met geïntegreerde afzuiging, wijnkoeler, veel kastruimte en een groot eiland — ideaal voor wie houdt van koken en gezellig samen zijn.
Met vijf (slaap)kamers is er ruimte voor elk gezinslid, een thuiskantoor of hobbyruimte. De badkamer is functioneel en eigentijds ingericht. Extra troef: een aparte bijkeuken en veel bergruimte.
Buiten: De tuin is een echt pareltje, puur genieten.
- Zwemvijver met royaal zonneterras
- Poolhouse met sauna, douche en lavabo
- Overdekt terras met ingebouwde barbecue
- Moestuinbakken en een vuurkorfzone voor lange zomeravonden
- Groot bijgebouw (ca. 40 m²) voor stockage, hobby of atelier
Het geheel ademt rust, privacy en luxe — perfect voor gezinnen of levensgenieters die graag buiten leven.
Duurzaam en instapklaar
Dankzij de grondige renovatie geniet je van hedendaags comfort en een energiezuinig karakter (EPC-label A). Zonnepanelen zorgen voor een lage energiefactuur, en de kwalitatieve afwerking maakt deze woning volledig instapklaar.
De troeven op een rij:
✅ Grondig gerenoveerde open bebouwing in Zelem
✅ 279 m² bewoonbare oppervlakte
✅ 5 slaapkamers mogelijk + 1 badkamer
✅ Hoogwaardige keuken met stoomoven, wijnkoeler en kookeiland
✅ Zwemvijver, sauna en poolhouse
✅ Overdekt terras met ingebouwde BBQ
✅ Groot bijgebouw van ±40 m² voor opslag of hobby
✅ EPC-label A – energiezuinig en duurzaam
✅ Rustige ligging met vlotte bereikbaarheid
Op zoek naar een unieke woning waar comfort, ruimte en rust samenkomen? Contacteer ons voor een bezoek en laat je verrassen door dit bijzondere pand.
.png?format=webp&width=1920&height=auto)


















































.png?format=webp&width=640&height=auto)

